Call us:+254 721 494 749
V. Apartments
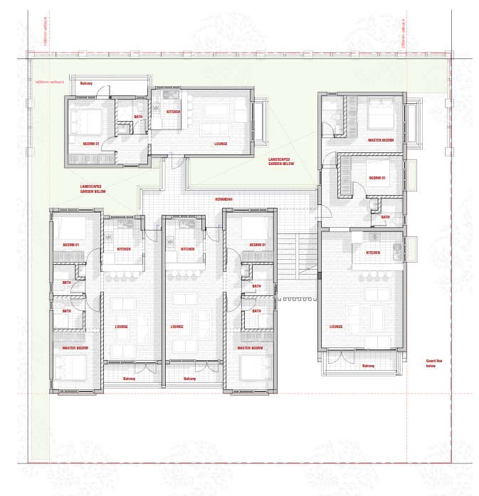
This apartment block design is one of our gems and this is affirmed as it emerges to define the Kisii landscape. Unlike most apartment designs, the building has no typical floor layout as it is carefully designed to fit into its environment. The project comprises five staggered or stepped levels on a steep sloping site. It is carefully positioned and stepped to respect and follow the slope on site.
With a well defined combination of one bedroom and 2 bedroom units, the design has all the lounge / open kitchen spaces with great views of the surrounding green hilly areas. The floor to ceiling windows in these spaces provide beautiful views and natural lighting into the spaces. The master bedrooms are all ensuite with ample storage and parking spaces at the semi basement area.
Renders

R01

R02

R03

R04
- Client:Private Developer
- Project Type:Residential
- Project Size:N/A
- Location:Kisii County; Kenya
- Status:Construction In Progress
